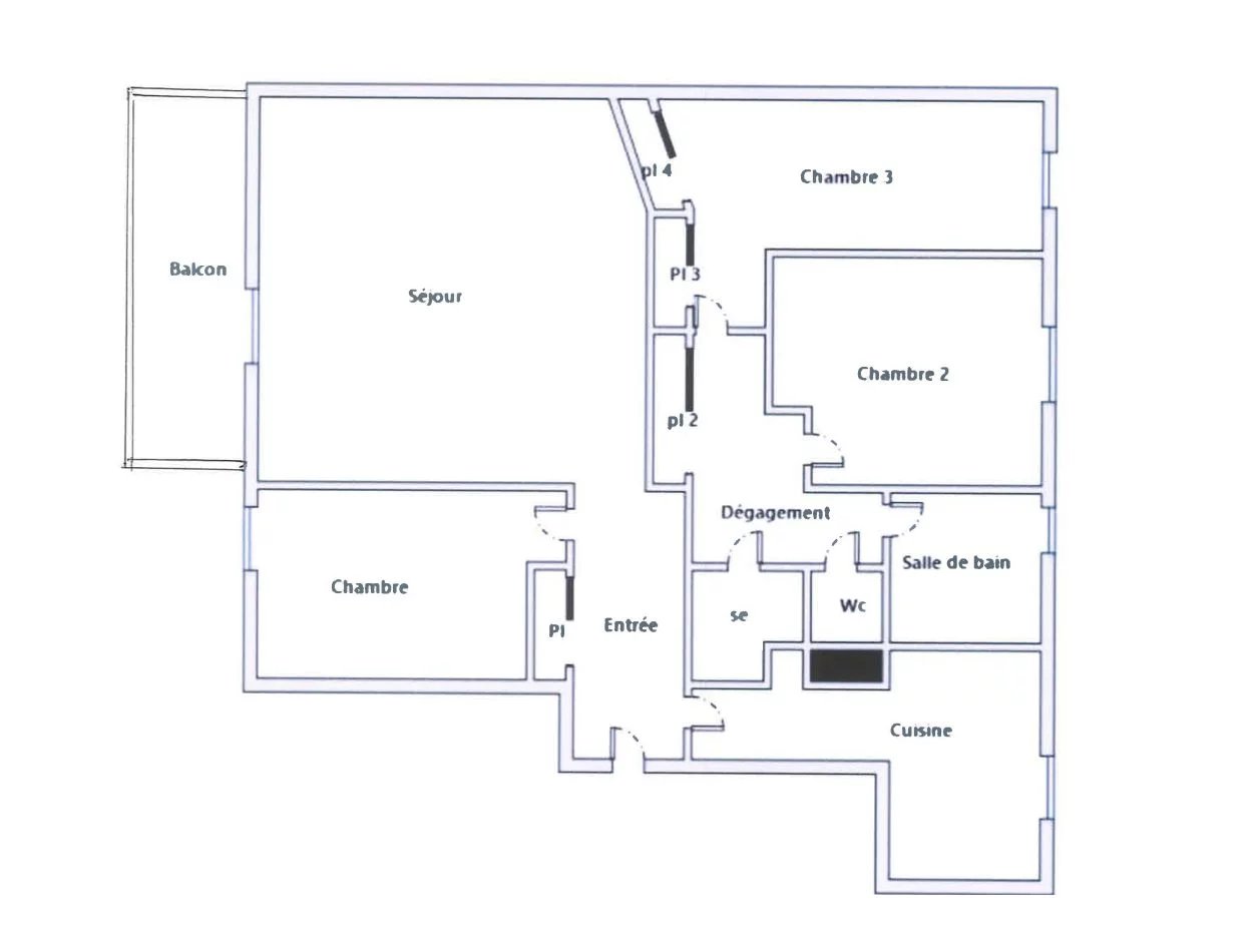
Paris 15ème, à proximité des commerces, des transports métro ligne 10, RER C et des espaces verts, l'agence VANEAU vous propose en exclusivité, au 5ème étage par ascenseur d'un immeuble moderne de 1987 entretenu, sécurisée avec gardien, un appartement traversant, lumineux et ensoleillé. Cet appartement offre un séjour sans vis-à-vis avec un large balcon exposé sud-ouest, 3 chambres et de belles prestations. Ce bien, en parfait état, propose également une cuisine dînatoire équipée, une salle de bains, une salle de douche, des toilettes et de nombreux rangements. Immeuble accessible PMR avec gardien. Cave, local à vélos et possibilité de parking en supplément. Faibles charges. DPE 'C'.
Pas d'informations disponibles
Ce site est protégé par reCAPTCHA et les règles de confidentialité et les conditions d'utilisation de Google s'appliquent.